Specyfikacja - E7

Powierzchnia użytkowa 80,30 m2

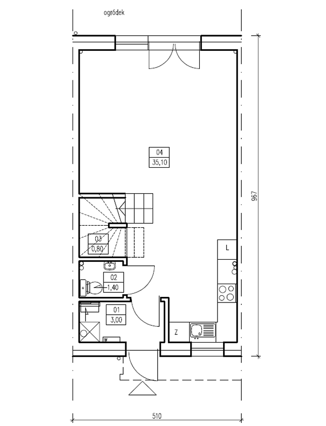
Parter - 40,30 m2

Nr. pom.Nazwa pomieszczeniaPow. netto (M2)
0.1Wiatrołap3,00
0.2WC1,40
0.3Pomieszczenie Pomocnicze0,80
0.4Salon, kuchnia35,10

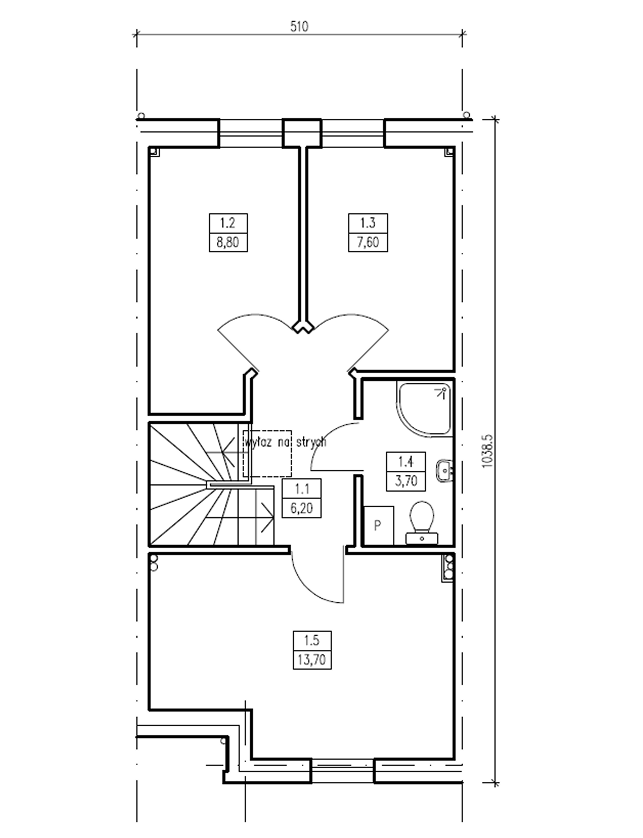
Piętro - 40,00 m2

Nr. pom.Nazwa pomieszczeniaPow. netto (M2)
1.1Komunikacja6,20
1.2Pokój8,80
1.3Pokój7,60
1.4Łazienka3,70
1.5Pokój13,70

Wizualizacje

  • Powierzchnia: 80.3 m2
  • Cena za m2: 10 500,00 zł/m2
  • Cena lokalu:
    843 150,00 zł
  • Dodatkowe miejsce postojowe: 20 000,00 zł
  • Cena całkowita z dodatkowym miejscem postojowym: 863 150,00 zł

Wszystkie podane ceny są cenami brutto.

Historia cen: E7
Data Cena za m2 Cena lokalu
2025-10-02 17:51:45 10 500,00 zł 843 150,00 zł

Wszystkie podane ceny są cenami brutto.

Wybierz dom

Kliknij na wybrany dom, by poznać szczegóły inwestycji.